Opcja na 2 pok. - Hala Garażowa - Niska zabudowa

Mieszkanie na sprzedaż
449 000,00 PLN , Pow. 30,22 m2
Drukuj ofertę
Drukuj ofertę
Typ nieruchomości:
Mieszkanie
Powierzchnia:
30,22 m2
Typ transakcji:
sprzedaż
Liczba pokoi:
1
Lokalizacja:
Gdańsk Morena , Czereśniowa
Piętro:
0 na 2
Numer oferty:
759659
Cena za m2:
14 857,71 PLN
Na sprzedaż mieszkanie na parterze w kameralnej inwestycji Rosa renomowanego dewelopera ROBYG ma styku dwóch dzielnic Morena - Ujeścisko.

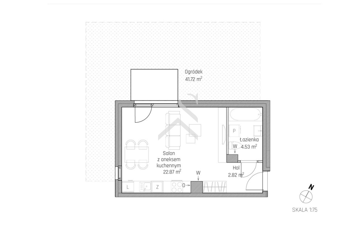
Powierzchnia mieszkania: 30,22 m², w skład której wchodzą:
- salon z aneksem kuchennym: 22,87 m²
- łazienka: 4,53 m²
- hol: 2,82 m²

Do lokalu przynależy prywatny ogródek o powierzchni 41,72 m², stanowiący realne przedłużenie przestrzeni mieszkalnej.

Układ mieszkania pozwala na wydzielenie dwóch pokoi, co czyni lokal atrakcyjnym zarówno do zamieszkania, jak i pod wynajem lub dalszą odsprzedaż. W galerii zdjęć są przedstawione dwa projekty mieszkania przearanżowanego na dwa pokoje. 

Do mieszkania obowiązkowo przynależy miejsce postojowe w hali garażowej - 49 000 zł.

Forma sprzedaży: cesja umowy deweloperskiej.
Planowany odbiór: lipiec 2026 roku.

Kameralna zabudowa, nowoczesny projekt i standard charakterystyczny dla Robyg sprawiają, że jest to propozycja o wysokim potencjale - zarówno użytkowym, jak i inwestycyjnym.


Zapraszam do kontaktu.
Nieprawidłowy adres E-mail